
HESYA | PILOTIS
Daycare and Rehabilitation for Mentally Challenged with Production and Learning Center for Community
Keywords
Commissioned
Location
Antakya, Turkey
Year
2024
Client
Anka Suisse, Association d' Aide Aux Victimes, UniSOS Foundation
Urbanites +
HESYA presents a hybrid approach to landscape and architecture, seamlessly blending built forms into the natural environment whilst complying with programmatic experiences required in a center for mentally disabled, as well as in production and learning facilities for the community. Designed to contribute to ameliorate the social and built spaces in the post-earthquake Hatay region, the project envisions deep integration with the surrounding landscape, allowing permeability between indoor and outdoor spaces and reinforcing a biophilic ethos that prioritizes natural materials, daylight, and sensory engagement.
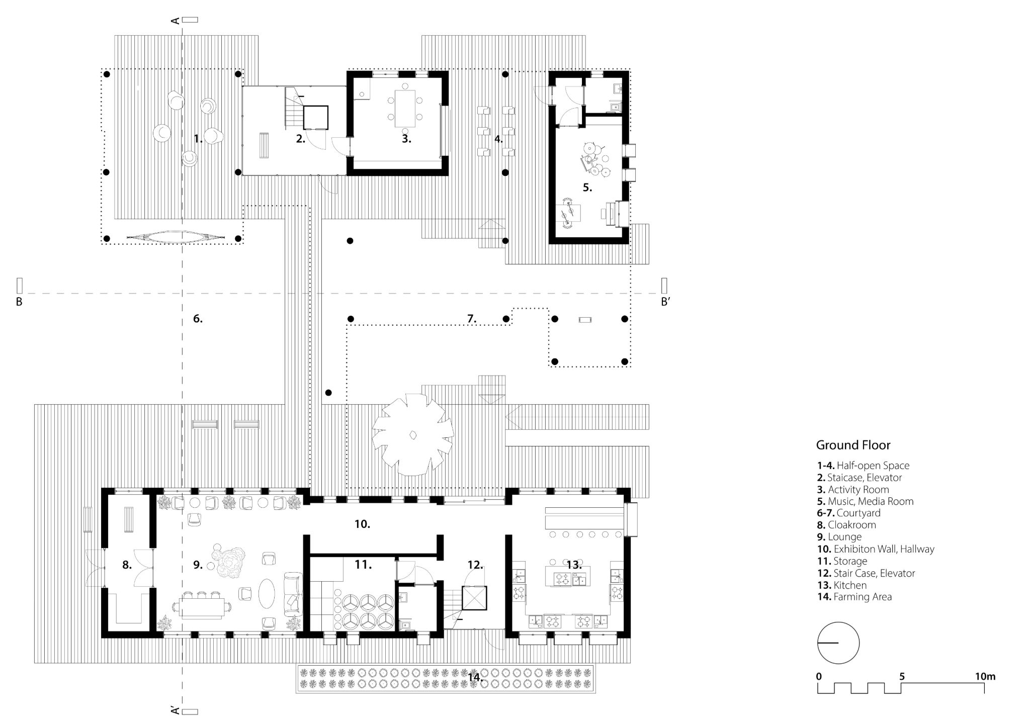
More than an architectural project, HESYA | PILOTIS represents a modality of regional vernacular architecture, reinterpreted through a contemporary social program. It operates simultaneously as a facility for individuals with mental disabilities and as a village-like communal space, where modular and adaptable design elements allow for flexibility in both function and experience. The emphasis on accessibility extends beyond physical mobility, embracing a broader philosophy of inclusivity, where sensory, social, and environmental interactions are carefully considered.

The architecture extends into the landscape through courtyards, shaded outdoor areas, and garden pathways, ensuring that the experience of nature is not merely an adjacent condition but an inherent part of daily life.
A defining characteristic of the project is its free-flowing ground-level space achieved through the elevation of buildings on columns above the landscape. This strategy enhances circulation, accessibility, and engagement with the terrain while creating an architectural language that merges openness with structural efficiency. The buildings are supported by reinforced concrete foundations with a superstructure entirely of timber, a combination that provides both structural integrity and a close connection to the contours of the landscape. The extensive use of timber surfaces on the superstructure, building facades and terraces not only grounds the project in sustainable and regionally contextual construction methods but also enhances the interplay of light, texture, and materiality, a fundamental component of its biophilic design.
Kozikoğlu’s exploration of modality is central to the project’s architectural and experiential framework. The design negotiates between built form, spatial programming, and the lived experience of its users, creating an environment that transcends mere functionality. HESYA is not simply a shelter or a series of enclosed volumes but an orchestrated sequence of spaces that engage nature, climate, and human interaction in a cohesive and evolving dialogue. The project’s sensitivity to ecological systems, its emphasis on daylight and natural materials, and its layered approach to accessibility and openness position it as a deeply integrated work of architecture, where the boundaries between built space and landscape are intentionally blurred.
In collaboration with
Engineering
Burhan Kaplan, STRAD, Structural Art and Design
Landscape
Deniz Aslan, DS Studio, Landscape and Architectural Design
Related Works




















