The LOG-IN BANDIRMA PARK
Logistics, Innovation and Design for Community Transformation
Keywords
Competition
Landscape
Location
Bandırma, Turkey
Year
2021
Urbanites +
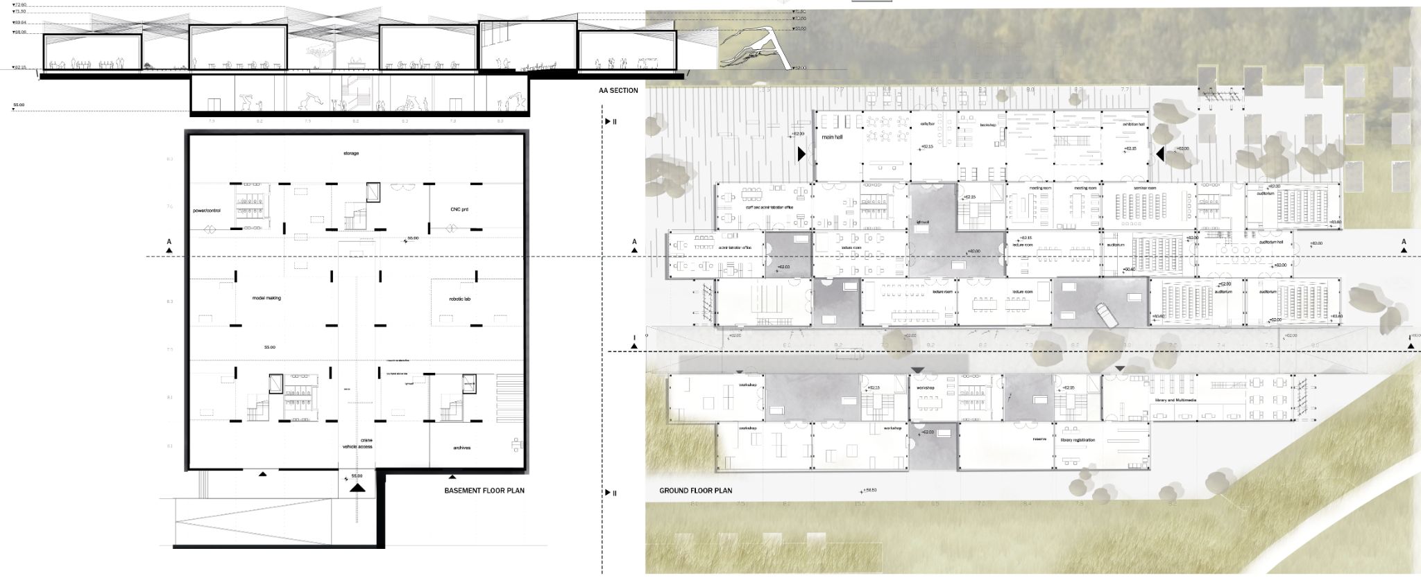
Bandırma sits at the edge of the Sea of Marmara, a port city that has long served as a threshold between land and water, movement and settlement. LOG-IN PARK, led by architect Nilüfer Kozikoğlu in collaboration with planning and landscape design groups from Istanbul Technical University, takes this condition of transit seriously. Developed for the port area and awarded second place in the 2017 International Bandırma Design Park competition, the project transforms a logistically significant but underutilized site into a layered public destination: a design institute, a Skywalk, a five-star hotel and convention center, retail and dining, an event platform, a city gate, and a land library, bound together by a coherent spatial and ecological vision.

The design method is what the team calls a "dynamic canvas," a process of relational mapping that charts connections between concrete and abstract elements, past conditions and future possibilities, physical space and digital experience. The architecture moves from diagram to three-dimensional form through algorithmic and parametric modeling, resulting in complex plan configurations that respond to the shifting nature of public, shared, and private space within a park setting. At the center of this system stands the LOG-IN PARK Design Institute, rendered in precise fair-faced concrete geometries, a building that embodies the project's commitment to knowledge, education, and rigorous design thinking. A companion mobile application extends this logic into the experiential realm, creating new spatial correspondences between the built environment and its users.
Beneath the formal ambition runs a consistent ecological and cultural sensibility. The project incorporates indigenous local knowledge, a seed lab, gastronomic programming, and archaeological awareness as architectural strategies rather than afterthoughts, weaving the historical heritage of Bandırma, its places, its people, and its buildings, into the fabric of the design. The result is a project that holds its many scales together: urban and intimate, data-driven and deeply contextual, forward-looking and grounded in the specific character of a city that has always existed at the meeting point of things.
In collaboration with
In collaboration with
Azime Tezer, Urban Planner, Leader of Urban Planning and Design Team
Ebru Erbaş Gürler, Landscape Designer, Academician, Joint Leader of Landscape Design Team
Nazife Tuğçe Onuk, Landscape Designer, Joint Leader of Landscape Design Team
Burcu Altun, Landscape Designer, Member of Landscape Design Team
Necdet Yalın Öcal, Landscape Designer, Member of Landscape Design Team
İzel Beşikci, Landscape Designer, Member of Landscape Design Team
Bilge Aydın, Landscape Designer, PHD Student in Urban Planning Member of Urban Planning and Design Team
Ebru Satılmış, Urban Planner, Master Student in Urban Planning, Member of Urban Planning and Design Team
Adnan Kaplan, Landscape Designer, Academician, Member of Landscape Design Team
Nuran Altun, Landscape Designer, Member of Landscape Design Team
Turkan Alp Onsal, Student of Architecture, Member of Landscape Design Team
Gerçek Annaniyazov, Landscape Designer, Member of Landscape Design Team
Cem Eren Güven, Architect, Member of Architecture Design Team
Pınar Geçkili, Architect, Member of Architecture Design Team
Aydan Aslan, Architect, Member of Architecture Design Team
Berk Arinç, Architect, Member of Architecture Design Team
Hasan Agah Erkan, Architect, Member of Architecture Design Team
Zümra Aksoy, Architect, Member of Architecture Design Team
Gizem Akgün, Architect, Member of Architecture Design Team
Ezgi Umut Türkoğlu, Student of Landscape Designer, Member of Landscape Design Team
Gizem Ezgi Kurangil, Industrial Product Designer, Urban Planner Assistant, Member of Landscape Design Team
Related Works












