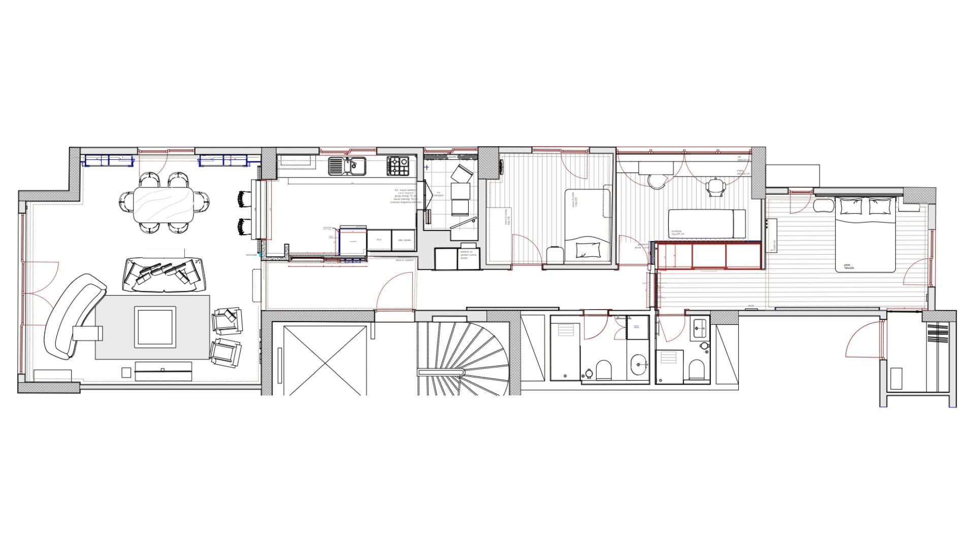
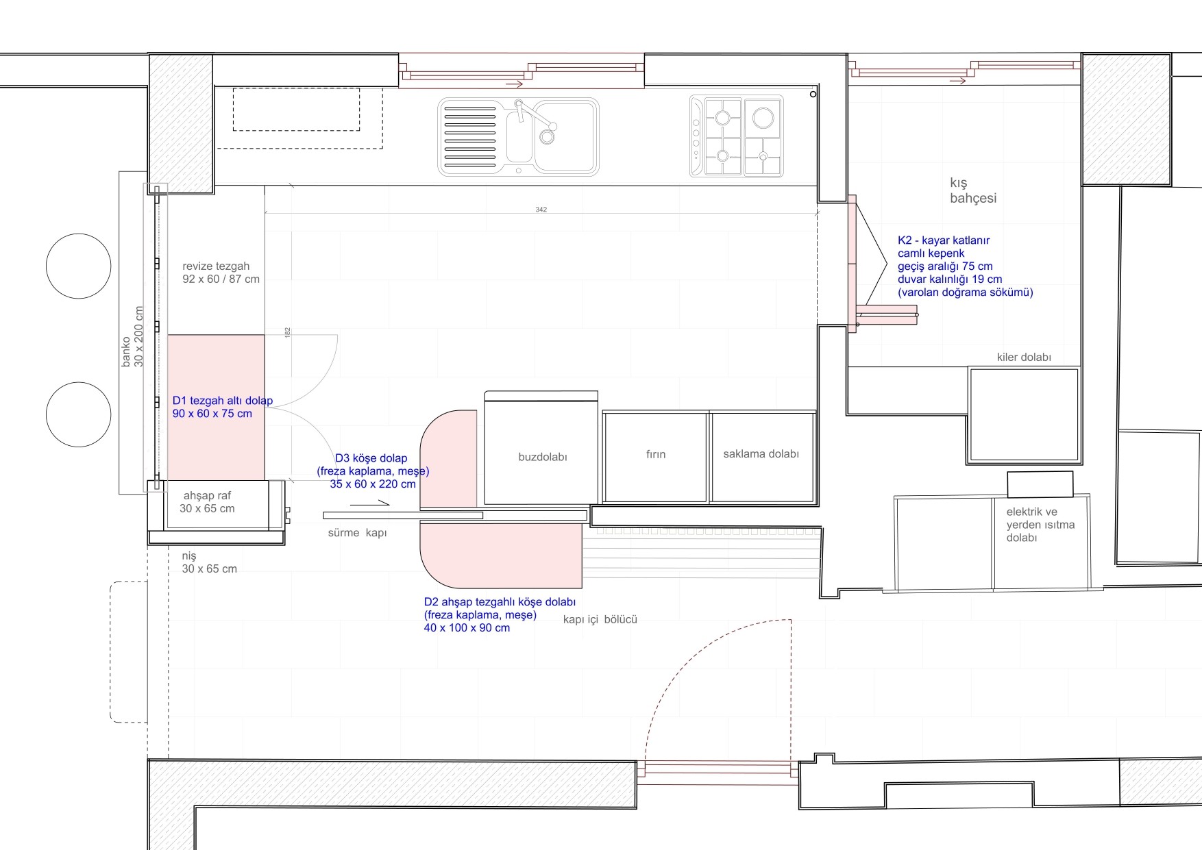
In 2024, we undertook a transformative interior design project in the vibrant Ömerpaşa, Cadde area of the Anatolian Side of Istanbul, tailored specifically for the Dündar couple. This refurbishment featured a thoughtfully designed semi-open kitchen that enhances the flow of daily life while creating an inviting space for casual gatherings.

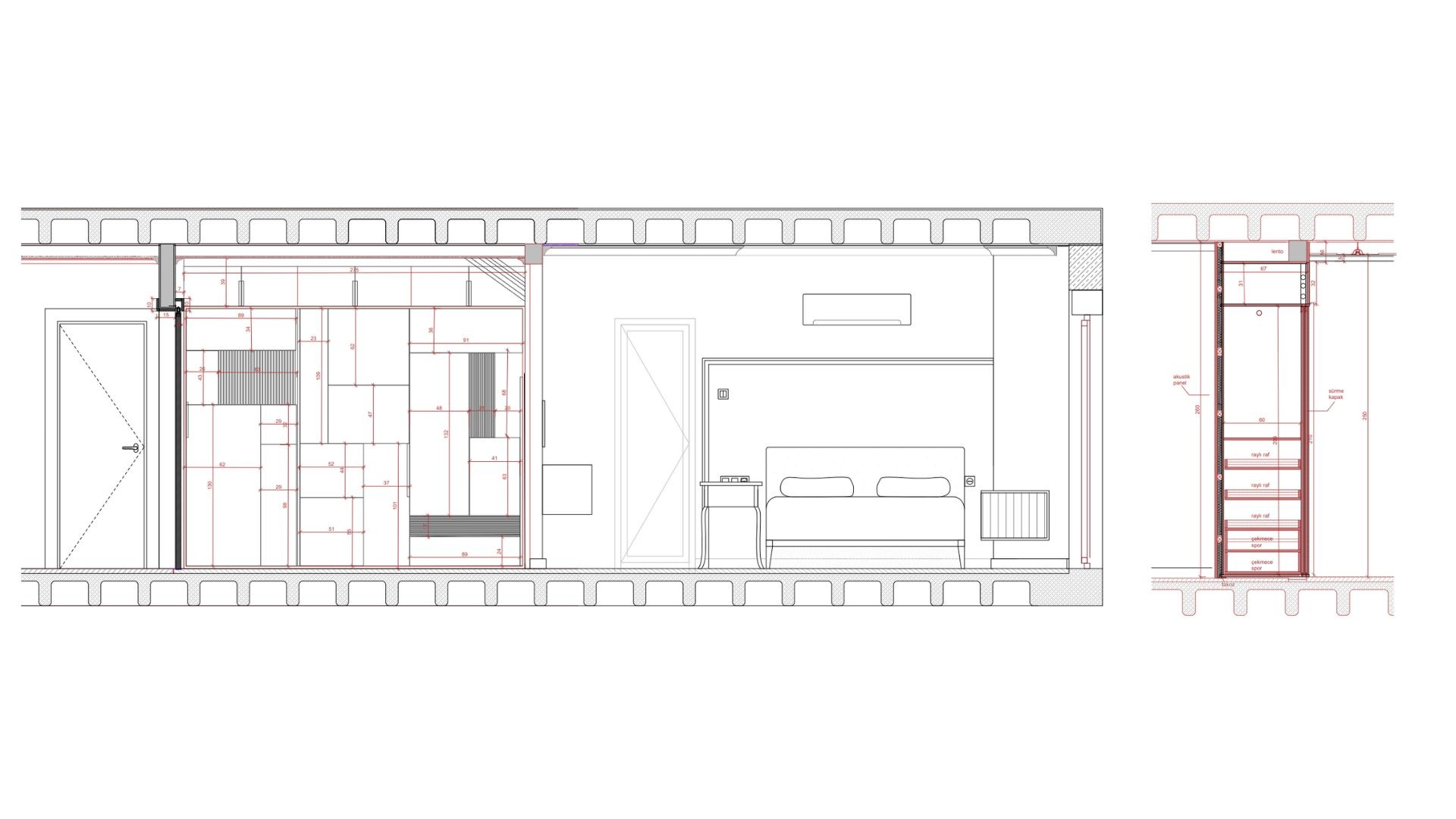
A key highlight of the project was the creation of a dedicated studio space for artist Merve Dündar. This studio was developed through a collaborative process with Merve, focusing on the dual objectives of showcasing her artistic endeavors and providing a comfortable environment for everyday living. The design incorporates a rich palette of colors and a variety of textures, which contribute to an uplifting atmosphere suitable for both creativity and relaxation.
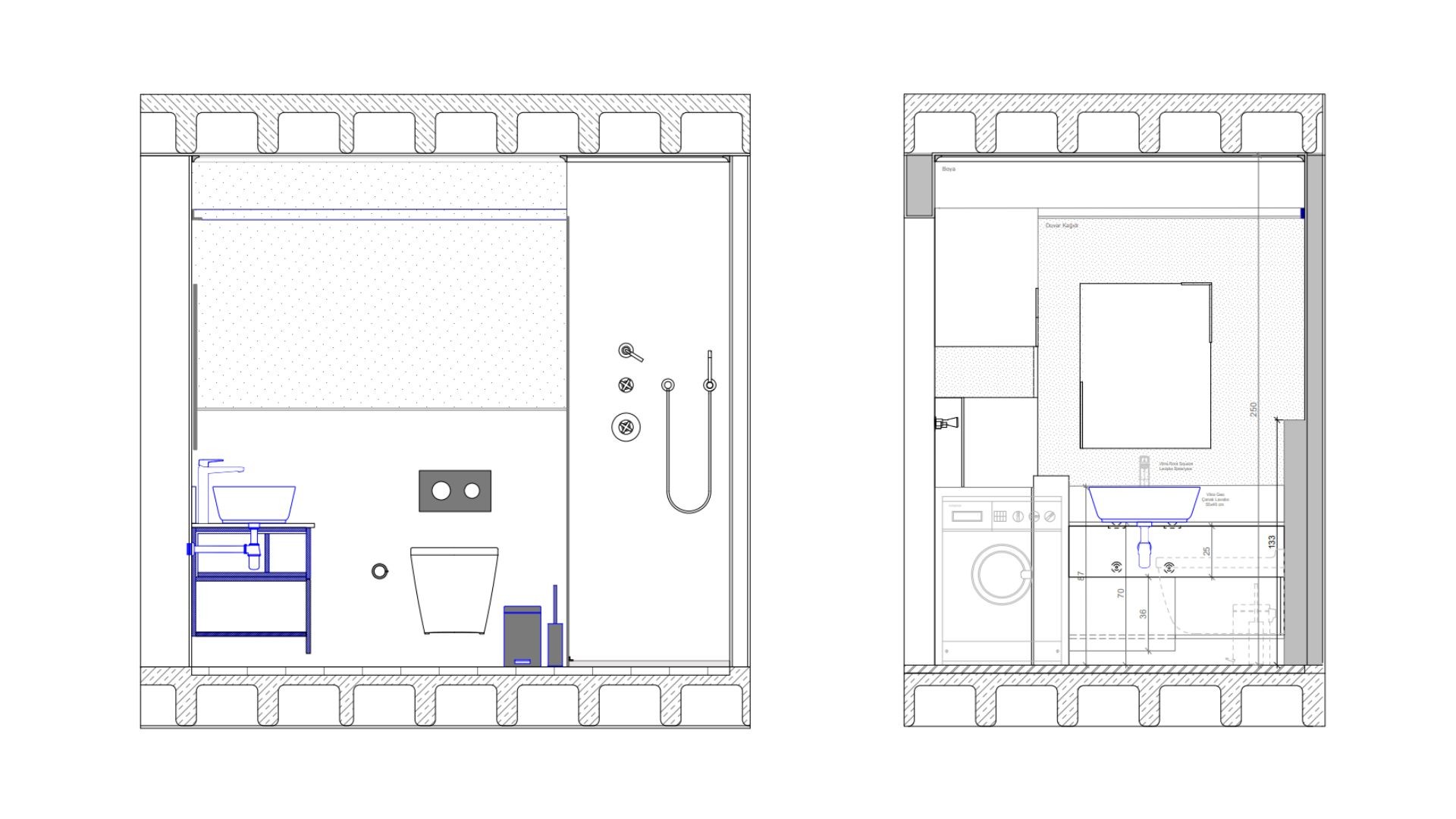
Merve's studio serves as a cozy and acoustically conditioned haven, where she can fully immerse herself in her artistic practices, including mixed media such as watercolors, knitting, and sketching. This space is not only an atelier but also a sanctuary for reading, gathering, and contemplation, allowing her to draw inspiration at any time of day. The thoughtful layout ensures that every corner of the studio is conducive to creativity, making it a true reflection of Merve's artistic spirit and the couple's lifestyle.
Related Works
















